Wagenweg 84 - Haarlem

Vraagprijs   € 895.000 k.k.  

Omschrijving

Op een geliefde locatie in Haarlem-Zuid ligt dit charmante HERENHUIS aan de Wagenweg 84. Een ideale kans voor wie zijn droomhuis naar eigen smaak wil creëren. De woning combineert karakter met een sterke basis: het souterrain en de bel-etage zijn enkele jaren geleden gemoderniseerd, waardoor belangrijke woonlagen al voorzien zijn van modern comfort.
De woning biedt volop mogelijkheden om de overige verdiepingen geheel naar eigen wens te renoveren en in te richten. Denk aan het creëren van extra slaapkamers, een luxe badkamer of een prachtige leefkeuken. Dankzij de prettige lichtinval en de fijne ligging nabij scholen, winkels en het centrum van Haarlem is dit een ideale woning voor handige kopers of gezinnen die hun eigen stempel willen drukken op hun toekomstige thuis.
Kortom: een unieke kans om wonen op niveau te combineren met het realiseren van een woning volledig naar eigen visie, op één van de mooiste plekjes van Haarlem.

INDELING:
SOUTERRAIN: hal met opstelplaats wasmachine, slaapkamer aan de voorzijde en een slaapkamer aan de achterzijde met toegang tot de tuin. Vanuit de hal ook toegang tot de badkamer. De badkamer is voorzien van een ruime inloopdouche, toilet en wastafelmeubel.

BEL-ETAGE: entree, keuken met divers inbouwapparatuur, woonkamer met deur naar de achtertuin en een trap naar het souterrain.

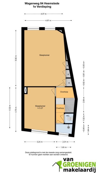
1e VERDIEPING: overloop met toiletruimte, douchegelegenheid en 2 slaapkamers.
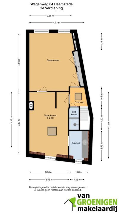
2e VERDIEPING: overloop met douchegelegenheid, 2 slaapkamers waarvan 1 slaapkamer is voorzien van een keukenblok.

BIJZONDERHEDEN:
* het souterrain en de bel-etage zijn een aantal jaar terug volledig gerenoveerd. Verder betreft het een kluswoning;
* Volledig naar eigen smaak in te delen;
* Parkeren in de omgeving middels een parkeervergunning. Kosten € 126,36 per jaar, 2e vergunning is € 471,- per jaar. (tarieven 2025)
* Op een mooie locatie gelegen nabij vele voorzieningen.

Aanvaarding: kan op korte termijn.

Kenmerken

Overdracht

Prijs
€ 895.000 k.k.
Status
Beschikbaar
Oplevering
In overleg

Bouw

Soort woonhuis
Herenhuis, Tussenwoning
Soort bouw
Bestaande bouw
Bouwjaar
1890
Onderhoud binnen
Matig
Onderhoud buiten
Matig
Bijzonderheden
Kluswoning

Oppervlakten en inhoud

Woonoppervlakte
204m²
Perceeloppervlakte
92m²
Inhoud
770m³

Indeling

Aantal kamers
7
Aantal slaapkamers
6
Aantal badkamers
3
Verdiepingen
4

Energie

Energielabel
C
Isolatie
Gedeeltelijk dubbel glas
Warm water
C.V.-ketel
Verwarming
C.V.-ketel
Ketel
(Combi-ketel, Eigendom)

Buitenruimte

Ligging
In woonwijk
Tuin
Achtertuin
Achtertuin
Noordwest, 29m², 240×1190cm

Garage

Video

360° Foto's

Plattegronden

Locatie

[ { "address": "Wagenweg 84", "zipCode": "2012 NH", "city": "Haarlem", "lat": 52.3718707, "lng": 4.6244631 } ]
[{"featureType":"landscape","stylers":[{"hue":"#FFBB00"},{"saturation":43.400000000000006},{"lightness":37.599999999999994},{"gamma":1}]},{"featureType":"road.highway","stylers":[{"hue":"#FFC200"},{"saturation":-61.8},{"lightness":45.599999999999994},{"gamma":1}]},{"featureType":"road.arterial","stylers":[{"hue":"#FF0300"},{"saturation":-100},{"lightness":51.19999999999999},{"gamma":1}]},{"featureType":"road.local","stylers":[{"hue":"#FF0300"},{"saturation":-100},{"lightness":52},{"gamma":1}]},{"featureType":"water","stylers":[{"hue":"#0078FF"},{"saturation":-13.200000000000003},{"lightness":2.4000000000000057},{"gamma":1}]},{"featureType":"poi","stylers":[{"hue":"#00FF6A"},{"saturation":-1.0989010989011234},{"lightness":11.200000000000017},{"gamma":1}]}]

Reageer

Uw bericht is naar ons verzonden. Wij nemen zo snel mogelijk contact met u op.

Sorry, we kunnen helaas niet met zekerheid vaststellen of je een mens of een geautomatiseerde bot/spammer bent. Hierdoor kunnen we het formulier dat je hebt ingevuld niet verzenden. Probeer het opnieuw of neem direct contact op met de makelaar via e-mail.

Er is iets mis gegaan met het versturen van het formulier.
Controleer of u alle velden (goed) heeft ingevoerd en probeer het nog een keer.

recaptcha
reCAPTCHA
PrivacyTerms
van

Goedenavond 👋

Benieuwd naar de waarde van jouw huis?

Je weet het in 1 minuut. Laten we beginnen!

Wat is de reden van jouw aanvraag?
Ik wil graag...

Er zijn meerdere antwoorden mogelijk.

Wanneer wil je verhuizen?

We zijn er bijna 🎉

Om het rapport op te maken hebben we een aantal gegevens nodig

recaptcha
reCAPTCHA
PrivacyTerms

Jouw woningwaarde wordt berekend... 🚀

loading

Bedankt %name%! De woningwaarde van %address% is berekend 🥳

Check je mail voor het rapport!

success
Wat is mijn huis waard?