Herentalsstraat 4 - Amsterdam

Vraagprijs   € 875.000 k.k.  

Verkocht

Omschrijving

Royaal familiehuis op een centrale en rustige locatie in Amsterdam

Gelegen aan de rustige Herentalsstraat in de wijk Nieuw Sloten, bevindt zich dit verrassend ruime familiehuis (bouwjaar 1992) met uitzicht op het water. Deze ideale gezinswoning biedt veel natuurlijk licht en maar liefst vier volwaardige woonlagen. De woning is eventueel ook geschikt voor het accommoderen van een au pair hulp vanwege dubbele badkamer en keuken.

INDELING:
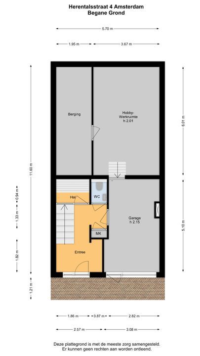
BEGANE GROND: entree, hal, meterkast, toilet met fontein, interne doorloop naar inpandige garage plus inpandige berging met een multifunctionele kamer, ideaal als werk-, hobby- of speelruimte. Via de centrale hal is de trap naar de eerste verdieping.

1e VERDIEPING: riante woonkamer met maar liefst een hoogte van ca. 3m, trap naar woonkeuken. Woonkamer en keuken zijn voorzien van nieuw visgraatparket en vloerverwarming (2022). De nieuwe keuken (2022) is voorzien van diverse inbouwapparatuur, te weten; vaatwasser, inductiekookplaat, pyrolyse oven, combi oven/magnetron, Quooker en afzuigkap. De Amerikaanse koelkast is uitrijdbaar voor onderhoud en schoonmaken en voorzien van camera’s en smart systeem voor inhoudsbeheer (Home connect). Vanuit de keuken is er een fraai uitzicht over het water. Aan de woonkamer grenst een zonnig terras op het zuiden (voorzien van hardhouten vlonders en elektrisch zonnescherm), met directe toegang tot de lager gelegen, kindvriendelijke tuin.

2e VERDIEPING: overloop, 3 slaapkamers en badkamer. De hoofdslaapkamer bevindt zich aan de voorzijde en is voorzien van een inloop kleding ruimte en deur naar de badkamer. De badkamer is voorzien van een toilet (zwevend), whirlpool, inloopdouche en dubbel wastafelmeubel.

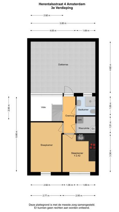
3e VERDIEPING: overloop, 2 slaapkamers waarvan één kamer is voorzien van een nieuw (2022) keukenblok met ingebouwde koelkast, oven en inductiekookplaat. Een nieuwe (2022) 2e badkamer voorzien van een inloopdouche, toilet (zwevend) en wastafelmeubel. Separate gesloten ruimte met opstelplaats wasmachine, cv-ketel en omvormer zonnepanelen. Het raam aan het dakterras is voorzien van een elektrisch screen. Vanuit de overloop toegang tot het ruime dakterras gelegen op het zonnige zuiden.

LOCATIE:
De woning is gelegen in een rustige, kindvriendelijke woonwijk met een breed aanbod aan voorzieningen in de directe omgeving, zoals winkels, scholen, speelgelegenheden en recreatiegebieden (Sloterpark, Sloterplas, Nieuwe Meer). Daarnaast bevinden zich diverse sportfaciliteiten, waaronder voetbal-, hockeyclubs, paardrijden en een wielerbaan, op korte afstand.
De bereikbaarheid is uitstekend, zowel met de auto als met het openbaar vervoer. De uitvalswegen (A10, A9, A4) zijn binnen enkele minuten te bereiken. Schiphol en Amsterdam Zuid liggen op circa 10 tot 20 minuten afstand. Op loopafstand bevindt zich een tramhalte en bushalte.

BIJZONDERHEDEN
* Ruim en comfortabel familiehuis met splitlevel-indeling
* Woonkamer en keuken voorzien van nieuwe vloerverwarming (6 groepen) en visgraat parket;
* De nieuwe keuken op de 1e etage is van het merk ProNorm X-Line en voorzien van hoogwaardige Siemens inbouw apparatuur en een keukeneiland;
* De meeste muren zijn vers gestuct;
* De meterkast is in 2022 vernieuw met circa 17 groepen (CHECK) verdeeld over 3 fasen (de aansluiting is nog 1 fase);
* Terras, tuin en royaal dakterras, allen gelegen op het zuiden;
* Plat dak vernieuwd in 2015;
* Voorzien van 12 zonnepanelen (2019);
* CV-installatie uit 2024;
* Energielabel A;
* Gelegen in een rustige, kindvriendelijke woonwijk;
* Diverse scholen, winkels en recreatievoorzieningen in de nabijheid;
* Goede bereikbaarheid via openbaar vervoer en snelwegen;
* Erfpacht afgekocht tot en met 31 maart 2041;
* Elektrische laadpaal binnen 50 meter.

Oplevering: in overleg

Kenmerken

Overdracht

Prijs
€ 875.000 k.k.
Status
Verkocht
Oplevering
In overleg

Bouw

Soort woonhuis
Eengezinswoning, Tussenwoning
Soort bouw
Bestaande bouw
Bouwjaar
1992
Onderhoud binnen
Goed
Onderhoud buiten
Goed

Oppervlakten en inhoud

Woonoppervlakte
179m²
Perceeloppervlakte
125m²
Overig oppervlakte
51m²
Inhoud
740m³

Indeling

Aantal kamers
7
Aantal slaapkamers
5
Aantal badkamers
2
Verdiepingen
4
Voorzieningen
Buitenzonwering, Jacuzzi, Mechanische ventilatie, Schuifpui, Zonnepanelen

Energie

Energielabel
A
Isolatie
Volledig geisoleerd
Warm water
C.V.-ketel
Verwarming
C.V.-ketel
Ketel
Remeha (2024, Combi-ketel, Eigendom)

Buitenruimte

Ligging
In woonwijk, Vrij uitzicht
Tuin
Achtertuin, Zonneterras
Achtertuin
Zuid, 45m², 580×780cm
Schuur
Inpandig
Faciliteiten schuur
Voorzien van elektra, Voorzien van verwarming

Garage

Plattegronden

Locatie

[ { "address": "Herentalsstraat 4", "zipCode": "1066 NK", "city": "Amsterdam", "lat": 52.3493576, "lng": 4.8068556 } ]
[{"featureType":"landscape","stylers":[{"hue":"#FFBB00"},{"saturation":43.400000000000006},{"lightness":37.599999999999994},{"gamma":1}]},{"featureType":"road.highway","stylers":[{"hue":"#FFC200"},{"saturation":-61.8},{"lightness":45.599999999999994},{"gamma":1}]},{"featureType":"road.arterial","stylers":[{"hue":"#FF0300"},{"saturation":-100},{"lightness":51.19999999999999},{"gamma":1}]},{"featureType":"road.local","stylers":[{"hue":"#FF0300"},{"saturation":-100},{"lightness":52},{"gamma":1}]},{"featureType":"water","stylers":[{"hue":"#0078FF"},{"saturation":-13.200000000000003},{"lightness":2.4000000000000057},{"gamma":1}]},{"featureType":"poi","stylers":[{"hue":"#00FF6A"},{"saturation":-1.0989010989011234},{"lightness":11.200000000000017},{"gamma":1}]}]

Reageer

Uw bericht is naar ons verzonden. Wij nemen zo snel mogelijk contact met u op.

Sorry, we kunnen helaas niet met zekerheid vaststellen of je een mens of een geautomatiseerde bot/spammer bent. Hierdoor kunnen we het formulier dat je hebt ingevuld niet verzenden. Probeer het opnieuw of neem direct contact op met de makelaar via e-mail.

Er is iets mis gegaan met het versturen van het formulier.
Controleer of u alle velden (goed) heeft ingevoerd en probeer het nog een keer.

recaptcha
reCAPTCHA
PrivacyTerms
van

Goedenavond 👋

Benieuwd naar de waarde van jouw huis?

Je weet het in 1 minuut. Laten we beginnen!

Wat is de reden van jouw aanvraag?
Ik wil graag...

Er zijn meerdere antwoorden mogelijk.

Wanneer wil je verhuizen?

We zijn er bijna 🎉

Om het rapport op te maken hebben we een aantal gegevens nodig

recaptcha
reCAPTCHA
PrivacyTerms

Jouw woningwaarde wordt berekend... 🚀

loading

Bedankt %name%! De woningwaarde van %address% is berekend 🥳

Check je mail voor het rapport!

success
Wat is mijn huis waard?