Pa Verkuijllaan 31, Badhoevedorp

Vraagprijs   € 395.000 k.k.  

Verkocht

Omschrijving

TE KOOP: Woon-/winkelpand op mooie zichtlocatie met parkeerruimte voor de deur. Geschikt voor detailhandel, dienstverlening of horeca.
De bovenwoning is nog in oorspronkelijke staat en dient gerenoveerd te worden.

Gunstige ligging aan een winkelstrip met woningen rondom. Het pand is goed bereikbaar: er liggen meerdere bushaltes op loopafstand en de A4 en A9 zijn op korte afstand bereikbaar.

Bouwjaar 1938. Gelegen op 147 m² eigen grond.
Oppervlakte commerciële ruimte begane grond 93 m² VVO.
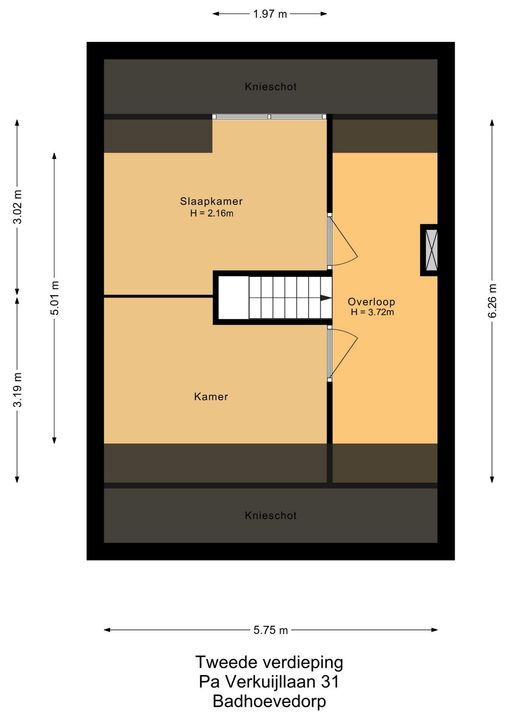
Woonoppervlakte 1e en 2e verdieping: 78 m².

INDELING:
BEGANE GROND: entree, winkelruimte, achter bevind zich de werkruimte/magazijn en koelcel;
1e VERDIEPING: overloop met toilet, badkamer, woonkamer, woonkeuken;
2e VERDIEPING: voorzolder, 2 slaapkamers.

BIJZONDERHEDEN:
* Bovenwoning dient gerenoveerd te worden;
* Geschikt voor detailhandel, horeca of dienstverlening;
* Momenteel wordt de ruimte nog verhuurd, wordt per 1 februari 2026 vrij van huur opgeleverd;
* Openbare parkeergelegenheid voor de deur.

Aanvaarding: per 1 februari 2026
Vraagprijs: € 395.000 k.k.

Kenmerken

Prijs
€ 395.000 k.k. Verkocht
Wijk
Badhoevedorp Zuid
Locatie
winkelcentrum
Postcode
1171 EA Badhoevedorp
Type
Winkelruimte
Bouwjaar
1937
Soort bouw
Bestaande bouw
Totaaloppervlakte
93m²
Verdiepingen
3
Front breedte
570
Oplevering
in overleg

Plattegronden

Locatie

[ { "address": "Pa Verkuijllaan 31", "zipCode": "1171 EA", "city": "Badhoevedorp", "lat": 52.3359415, "lng": 4.7797826 } ]

Reageer

Uw bericht is naar ons verzonden. Wij nemen zo snel mogelijk contact met u op.

Sorry, we kunnen helaas niet met zekerheid vaststellen of je een mens of een geautomatiseerde bot/spammer bent. Hierdoor kunnen we het formulier dat je hebt ingevuld niet verzenden. Probeer het opnieuw of neem direct contact op met de makelaar via e-mail.

Er is iets mis gegaan met het versturen van het formulier.
Controleer of u alle velden (goed) heeft ingevoerd en probeer het nog een keer.

recaptcha
reCAPTCHA
PrivacyTerms
van

Goedenavond 👋

Benieuwd naar de waarde van jouw huis?

Je weet het in 1 minuut. Laten we beginnen!

Wat is de reden van jouw aanvraag?
Ik wil graag...

Er zijn meerdere antwoorden mogelijk.

Wanneer wil je verhuizen?

We zijn er bijna 🎉

Om het rapport op te maken hebben we een aantal gegevens nodig

recaptcha
reCAPTCHA
PrivacyTerms

Jouw woningwaarde wordt berekend... 🚀

loading

Bedankt %name%! De woningwaarde van %address% is berekend 🥳

Check je mail voor het rapport!

success
Wat is mijn huis waard?